Mobilheim Allegro – der Klassiker
Das Modell Allegro ist unsere zeitlose, klassische Variante und kann als einteiliges sowie auch als zweiteiliges Mobilheim geplant werden:
- Satteldach
- Flachdach
- überdachte giebelseitige Terrasse
- Erker
Nahezu jede Grundrissidee kann verwirklicht werden. Jedes Modell wird individuell geplant.
Viele Ausstattungsoptionen stehen zur Auswahl.
Ihr Haus kann mit oder ohne Räder geliefert werden.
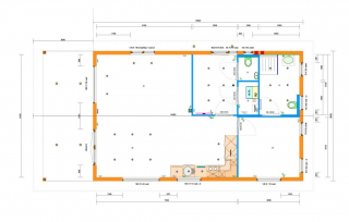
Nachstehend finden Sie verschiedene Grundrissentwürfe:
Einteilige Mobilheime
4,00 x 10,00 m

Download Grundriss Allegro 4,00 x 10,00 m
4,00 x 12,50 m
Download Grundriss Allegro 4,00 x 12,50 m
4,90 x 14,90 m
Download Grundriss Allegro 4,90 x 14,90 m
Preisbeispiele, Stand 1..2.2025
4,00 x 10,00 m ab 94.950,00 €
4,00 x 12,50 m ab 118.687,00 €
4,90 x 14,90 m ab 157.500,00 €
Zweiteilige Mobilheime
S 68 8,00 x 8,50 m

Download Grundriss Allegro S 68 8,00 x 8,50 m
M 87 6,50 x 11,50 m
Download Grundriss Allegro M87 6,50 x 13,50 m
L 100 8,00 x 12,50 m

Download Grundriss Allegro L100 8,00 x 12,50 m
Preisbeispiele, Stand 1.1.2025
S 68 8,00 x 8,50 m ab 149.356,00 €
M75 6,50 x 11,50 m ab 174.433,00 €
L 100 8,00 x 12,50 m ab 202.309,00 €
XL120 8,00 x 15,00 m ab 227.380,00 €
Im Lieferumfang der angegebenen Preise sind enthalten:
hoch qualitative Kunststofffassade , verschiedene Anbieter und Farben stehen zur Auswahl
2-fach Isolierverglasung
Fenster und Türen farbig (Renolit),
Größe/Aufteilung gemäß Grundrissentwurf
Gasbrennwerttherme Vaillant EcoTec
Boden Vinyl und Wandverkleidung Glasvliestapete, verschiedene Dekore stehen zur Auswahl
Badezimmer mit Dusche 900 x 900 mm, Duschkabine und Thermostatbrausearmatur Grohe, WC und Waschtisch mit Einhebelmischbatterie Grohe
Markenküchenzeile mit Ober- und Unterschränken, verschiedene Dekore stehen zur Auswahl
(ohne Karussellschrank), Cerankochfeld, Ablufthaube, Kühlschrank
Steckdosen und Lichtschalter in Unterputzausführung Busch-Jaeger oder gleichwertig
Optional:
auslaufende Decke
barrierefrei
Fassade Renolit
3-fach Isolierverglasung
handbediente oder elektrische Rollladen
Fußbodenheizung mit Einzelraumsteuerung, elektrische Fußbodenheizung, Photovolatikanlage,
Luft-Wasser-Wärmepumpe, Klimaanlage, usw.
LED-Einbauspots
bodengleiche Dusche, Badewanne, Handtuchheizkörper, Badezimmermöbel
Schiebetürenschrank
und vieles mehr












